K27.mk Fireboard облога за ПП заштита на вентилациски канали
Облога за ПП заштита на вентилациски канали од поцинкуван лим.
СИСТЕМИ
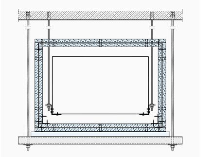
K271.mk Kнауф Fireboard канали за вентилација

K271.mk Кнауф Fireboard облога на канал за вентилација.
Fireboard каналите може да се изведат во исто време со каналите за вантилација или подоцна. Дебелината на облогата зависи од нивото на бараната ПП заштита.